2-к квартира, 2/5 эт., 55м²

Рязань, ул Октябрьская, д. 16
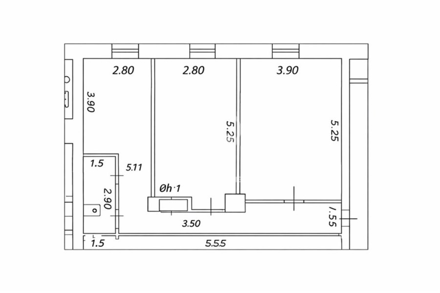
Продаётся 2-комнатная квартира, 55,9 м²
📍 г. Рязань, ул. Октябрьская, д. 16 | 2 этаж | Потолки 3 м
Просторная двухкомнатная квартира с высокими потолками 3 метра и оригинальной лепниной. Отличный вариант для тех, кто хочет сделать ремонт под себя.
✔️ Площадь 55,9 м²
✔️ Кухня 10,5 м²
✔️ Совмещённый санузел
✔️ Встроенный шкаф в стене
✔️ 2 этаж
Состояние — под косметический ремонт.
Санузел и кухня полностью освобождены и готовы к отделке, коммуникации заменены. Есть газовая колонка. Установлены окна ПВХ, чугунные батареи — квартира тёплая.
При необходимости может остаться мебель: диван, шкафы, кресла, гардероб.
Отличное расположение: рядом поликлиника, детские сады, школы, Дом культуры, парк, остановки и магазины. Соседи тихие, спокойные.
📞 Звоните — покажу в удобное время!
Оказываю помощь в одобрении ипотеки.
Полное юридическое сопровождение, гарантия чистоты сделки и безопасность расчётов для каждого клиента.
Тип предложения Продам
География Рязань, Рязанская область
Тип объекта
Вторичный рынок
Адрес
ул Октябрьская, д. 16
Комнат
2
Планировка
Стандартная
Тип комнат
Раздельные
Общая площадь
55,90 м2
Жилая площадь
31,00 м2
Площадь кухни
10,50 м2
Этаж
2
Этажей в доме
5
Высота потолков
3,00 м
Санузел
Совмещенный

Все ваши сообщения мы читаем и все пожелания учитываем, но, к сожалению, ответ не гарантируем.

Если вы расчитываете получить ответ, не забудьте заполнить это поле.
Отправить

Сообщение будет отправлено на электронную почту автора объявления. Ваш электронный адрес будет ему доступен для ответа.

Отправить
Отправить